
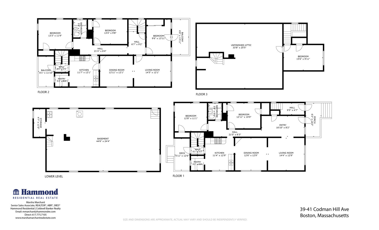
Charming, spacious two-family home atop the desirable Codman Hill neighborhood, with views of Boston Harbor and Blue Hills. This meticulously maintained and thoughtfully upgraded 6 bed, 2 bath property offers 3,182 sq. ft. of living space spread across three levels, plus a large unfinished attic and full height basement with great potential for expansion. The property boasts impeccable gum wood and oak floors, built-in cabinets, pantries, generous widows, and porches. In addition to its timeless character, this home has been upgraded with modern amenities including: owned solar panels that help reduce electric bills, mini-split systems for year-round comfort, gas hot water heater, whole home insulation, certified de-leaded in #41, and more. Roof and sewer line 2014. A long level driveway and two-car detached garage offer ample parking, and private yard add to the home's appeal. Convenient to Ashmont Train, Lower Mills and Adams Villages. Great for investors and owner occupants alike!